お問い合わせ先
平日:午前9時から午後5時30分まで(電話対応は午後5時まで)
物件ピックアップ
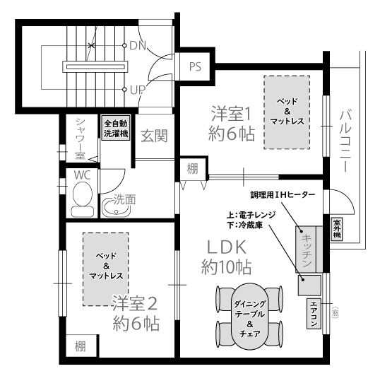
樫原賃貸住宅【家具・家電付き】
留学生等対象のシェアルームとしてリノベーションされた居室。大学所属の日本人学生・研究員の方もご入居いただけます。冷蔵庫や電子レンジ、照明・家具など設置。インターネットも無料です。

| 所在地 |
京都市西京区樫原内垣外町25番地の1 |
| 物件詳細 |
5階【大学所属の日本人学生・研究者限定】※単身・ルームシェア(2名まで)可能 即入居可 リノベーション済み 2LDK 44.69㎡ 南向き エアコン・冷蔵庫・電子レンジ・洗濯機・ベッド&マットレス・ダイニングテーブル&チェア・IHクッキングヒーター・インターネット無料 |
| 賃料など |
賃料70,000円/月(学生は5,000円引き) 敷金2か月 礼金なし 更新料なし 自治会費1,000円/月 敷地内駐車場あり8,800円(軽のみ) |
| 交通 |
京都市営バス「史跡公園前」「三ノ宮街道」徒歩5分 |
| 教育施設 |
京都市立樫原小学校、京都市立樫原中学校 |
公社の賃貸住宅一覧
樫原賃貸住宅
| 所在地 |
京都市西京区樫原内垣外町25番地の1 |
| 構造・規模 |
鉄筋コンクリート造 5階建 |
戸数 |
50戸 |
| 間取り |
1LDK~2LDK |
専有面積 |
44.69㎡ |
二軒茶屋賃貸住宅
| 所在地 |
京都市左京区静市市原町1053-2 |
| 構造・規模 |
鉄筋コンクリート造 5階建 |
戸数 |
20戸 |
| 間取り |
2K・3K・2LDK |
専有面積 |
45.84㎡ |
シティーコーポ二条駅
| 所在地 |
京都市中京区西ノ京栂尾町111 |
| 構造・規模 |
鉄筋コンクリート造 6階建 |
戸数 |
10戸 |
| 間取り |
2DK~3DK・1LDK~2LDK |
専有面積 |
55.36㎡~70.99㎡ |
久我の杜賃貸住宅
| 所在地 |
京都市伏見区久我東町210番地 |
| 構造・規模 |
鉄筋コンクリート造 3階建 |
戸数 |
16戸 |
| 間取り |
3DK |
専有面積 |
50.63㎡ |
コープミール花園
| 所在地 |
京都市右京区花園木辻南町12-11 |
| 構造・規模 |
鉄筋コンクリート造 4階建 |
戸数 |
12戸 |
| 間取り |
3DK |
専有面積 |
65.64㎡~67.25㎡ |
エレスパ24
| 所在地 |
京都市右京区樫原盆山8番地1 |
| 構造・規模 |
鉄筋コンクリート造 6階建 |
戸数 |
24戸 |
| 間取り |
2DK・2LDK~3LDK |
専有面積 |
50.01㎡~61.56㎡ |
コンフォート出水
| 所在地 |
京都市上京区日暮通下立売上る西入分銅町556 |
| 構造・規模 |
鉄筋コンクリート造 5階建 |
戸数 |
28戸 |
| 間取り |
2DK・3LDK |
専有面積 |
52.55㎡~69.6㎡ |
メゾン七条新町
| 所在地 |
京都市下京区新町通正面下る平野町772 |
| 構造・規模 |
鉄筋コンクリート造 4階建 |
戸数 |
27戸 |
| 間取り |
3LDK |
専有面積 |
65.06㎡~66.32㎡ |